Les infos Essentielles
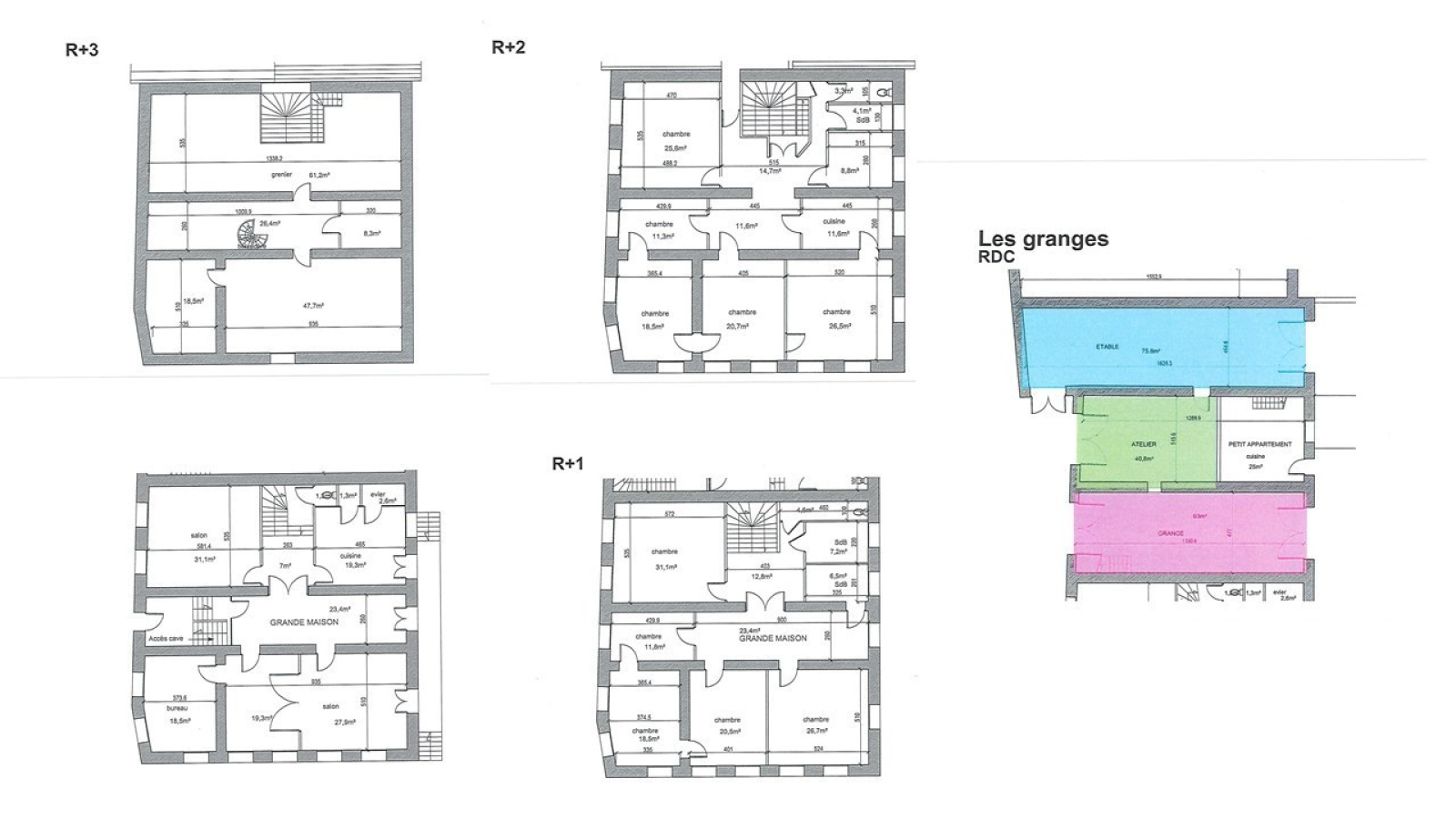
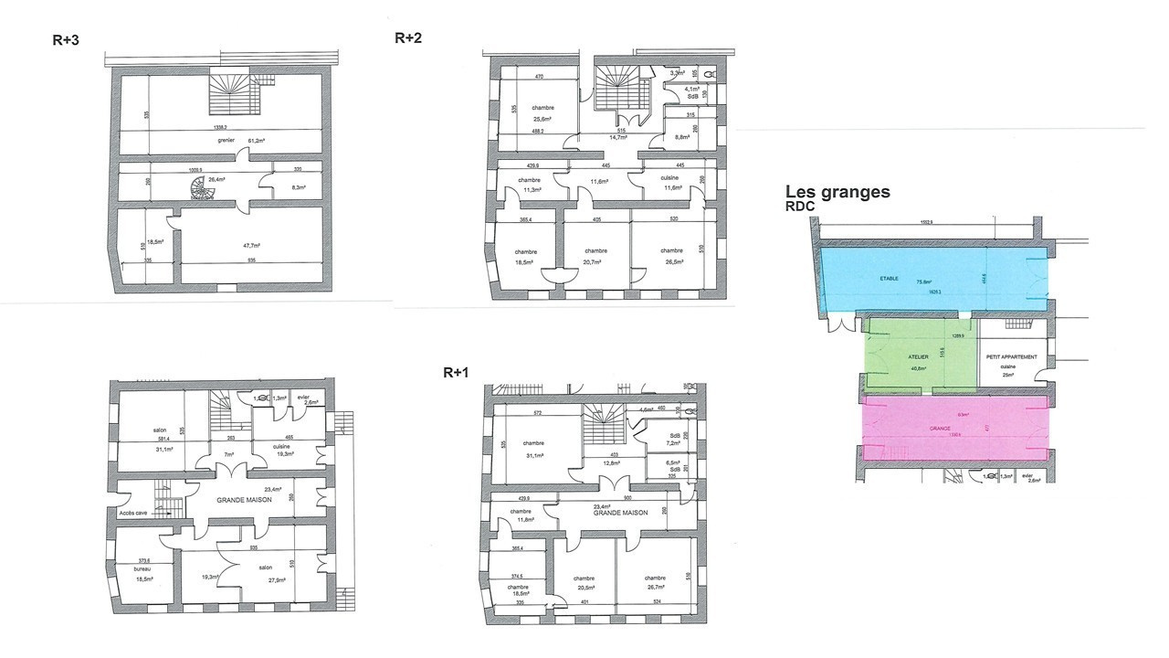
Au coeur d'un environnement paisible et authentique, dans le charmant hameau de Thioles à Simandre-sur-Suran, découvrez cette remarquable maison de maître en pierre, empreinte d'histoire et de caractère, offrant environ 690 m² habitables et un potentiel rare. Derrière sa façade noble, la bâtisse principale se déploie sur de vastes volumes baignés de lumière. Elle comprend 10 chambres, 2 cuisines, un bureau, des dégagements, 2 salons de réception, 3 salles de bains, 2 salles d'eau et 3 toilettes, permettant d'accueillir famille, amis ou projets d'accueil dans un confort absolu. Le dernier étage révèle un grenier de 163 m², propice à de multiples aménagements, ainsi qu'un belvédère offrant une vue dégagée sur les environs. En sous-sol, deux caves complètent ce bien, idéales pour le stockage ou les amateurs de vin. En mitoyenneté, une seconde maison d'habitation d'environ 240 m² enrichit la propriété. Elle se compose d'un hall d'entrée, d'un salon, d'une cuisine, d'un dégagement, de deux bureaux, d'un atelier, de trois chambres et d'un grenier, parfaite pour une maison d'amis, un logement indépendant ou une activité professionnelle. Les deux bâtisses sont harmonieusement reliées par de nombreuses dépendances : un garage traversant de 63 m², un garage indépendant de 41 m², une grange de 75 m², et une superbe terrasse couverte de 56 m², véritable espace de vie extérieur. L'ensemble s'inscrit sur un terrain de 2 040 m², offrant calme, intimité et un cadre de vie privilégié + un terrain non attenant de 2926 m². Un bien rare, idéal pour une grande maison familiale, un projet de chambres d'hôtes, de gîtes ou toute activité nécessitant de vastes volumes et du charme authentique. Les +++ : Toiture refaite à neuf ! DPE : G/660, GES : E/64, Diag établi le 25/02/2025. Montant estimé des dépenses annuelles d'énergie pour un usage standard : entre 11 500 et 15 640 Euros. Prix moyens des énergies indexés sur les années 2021, 2022, 2023 (abonnement compris) Contactez Franck GUY (agent commercial RSAC 408 372 563) au 06 73 45 11 08 dès maintenant pour plus d'informations et planifier une visite.. Agence Bernollin Immobilier Treffort. Prix : 498 000 Euros / Référence annonce : LIBOIS01250. Honoraires à la charge du vendeur. Les informations sur les risques auxquels ce bien est exposé sont disponibles sur le site Géorisques : www.georisques.gouv.fr
Localisation Du bien
-
Commerces et santé
-
Loisirs
-
Ecoles
-
Transports
-
Pratique
Les infos Energetiques
Ce site est protégé par reCAPTCHA, les Politiques de Confidentialité et les Conditions d'Utilisation de Google s'appliquent.
